Metro de Lisboa

Metro de Lisboa. Veja aqui a nova estação Infante Santo

11 nov, 2024 - 19:24 • João Pedro Quesado

O prolongamento da Linha Vermelha, entre São Sebastião a Alcântara, já vai preparar uma futura ligação do Metro de Lisboa a Algés. Obra apenas vai ter um poço no Jardim da Parada, em resposta às preocupações dos moradores, e vai haver alterações no acesso à Ponte 25 de Abril.

A+ / A-

Já se sabe qual vai ser o aspeto de mais uma estação do prolongamento da Linha Vermelha do Metro de Lisboa. Os documentos do projeto de execução, atualmente em consulta pública e consultados pela Renascença, mostram uma decoração evocativa da história do Infante Santo, D. Fernando de Portugal, que dá nome à estação.

O átrio da estação vai, segundo o relatório de conformidade ambiental do projeto de execução da obra, representar a “abnegação” do Infante Santo, enquanto o mezanino (o nível intermédio, que liga o átrio ao cais da estação) vai representar o “martírio” e o cais vai simbolizar a “libertação” de D. Fernando.

D. Fernando de Portugal, conhecido como Infante Santo, foi feito refém depois de o exército português ser cercado numa tentativa de conquistar a cidade de Tânger, em Marrocos, em 1436. A condição para a libertação seria a devolução de Ceuta, que não aconteceu, levando à morte de D. Fernando na prisão em Fez, em 1443.

No átrio, a "abnegação é representada através do desprendimento de "cubos" encaixados sob o tecto e parede lateral". No caso do mezanino, o "martírio" é representado através de "um tecto muito mais rebaixado e controlado". Já no cais, onde os passageiros vão esperar pelo metropolitano, "a libertação é representada com a "explosão" da cor encarnada e pixelados com tons de antracite".

Localização da estação Campolide/Amoreiras. Imagem: Metro de Lisboa
Localização da estação Campolide/Amoreiras. Imagem: Metro de Lisboa
Localização da estação de Campo de Ourique. Imagem: Metro de Lisboa
Localização da estação de Campo de Ourique. Imagem: Metro de Lisboa
Localização da estação de Infante Santo. Imagem: Metro de Lisboa
Localização da estação de Infante Santo. Imagem: Metro de Lisboa
Localização da estação de Alcântara. Imagem: Metro de Lisboa
Localização da estação de Alcântara. Imagem: Metro de Lisboa

A estação de Infante Santo, localizada na freguesia da Lapa - entre a Avenida Infante Santo e a Calçada das Necessidades – vai ter três acessos: dois localizados na avenida, e um terceiro, com elevador, já no interior do quarteirão onde a estação vai ficar localizada. O parque de estacionamento por cima da estação vai ter lugar para 62 carros.

O fim do novo túnel da Linha Vermelha vai ficar debaixo de terrenos do Instituto Superior de Agronomia, descrevendo o início de uma curva em direção a Belém. A opção é justificada pela “possibilidade do futuro prolongamento da linha de Alcântara para Algés”.

O prolongamento da Linha Vermelha do Metro de Lisboa conta com mais três estações: a estação de Campolide/Amoreiras, a estação de Campo de Ourique (no Jardim da Parada) e a estação de Alcântara.

De acordo com os documentos consultados pela Renascença, a estação de Campolide/Amoreiras, com seis acessos (incluindo um elevador), faz o novo troço da Linha Vermelha passar por baixo do túnel do Marquês de Pombal, e será construída pelo método de “cut and cover” - escavação, construção da infraestrutura e posterior restauro da superfície.

A estação de Campo de Ourique, cuja localização tinha sido alvo de objeções por moradores da área devido aos efeitos no Jardim da Parada, vai ser construída com recurso a apenas um “poço de ataque”, minimizando assim o impacto no espaço público. A estação vai ter cinco acessos, um deles com dois elevadores.

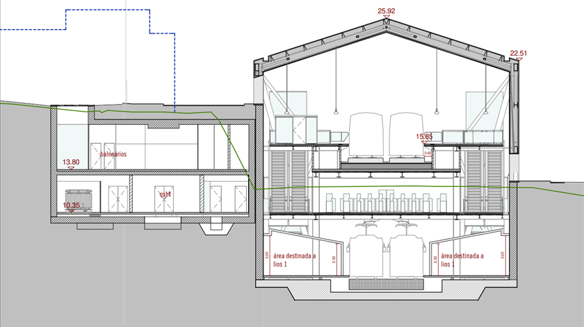
A estação de Alcântara é a única que vai ser construída à superfície, com um cais para o Metro de Lisboa e outro, num nível inferior, para o LIOS (Linha Intermodal Sustentável) até ao Jamor e estação de Cruz Quebrada, em Oeiras. O LIOS será um metro ligeiro de superfície, que também vai ligar Santa Apolónia a Loures.

A construção desta estação vai levar a mudanças no acesso à Ponte 25 de Abril em Alcântara, incluindo a criação de uma rotunda por debaixo da ponte.

Alterações ao acesso à Ponte 25 de Abril em Alcântara. Imagem: Metro de Lisboa
Alterações ao acesso à Ponte 25 de Abril em Alcântara. Imagem: Metro de Lisboa
Esquema da estação de Alcântara, com Metro de Lisboa em cima e LIOS para Oeiras em baixo. Imagem: Metro de Lisboa
Esquema da estação de Alcântara, com Metro de Lisboa em cima e LIOS para Oeiras em baixo. Imagem: Metro de Lisboa

A inserção da Linha Vermelha em Alcântara exige a construção de um viaduto, que se tem provado o ponto mais contencioso do projeto, devido à expropriação de vários edifícios.

À Renascença, vários proprietários queixaram-se, em 2023, dos valores baixos oferecidos como indemnização. Agora, os mesmos dão conta de avanços e recuos no processo por parte da Metro de Lisboa, e apontam que não há escrituras feitas. A empresa disse que os imóveis vão ficar livres até ao final de 2024.

O prolongamento da Linha Vermelha conta com 357,5 milhões de euros em financiamento do Plano de Recuperação e Resiliência (PRR), e deveria ficar terminado até ao final de junho de 2026.

Contudo, em outubro, a secretária de Estado da Mobilidade disse que as quatro estações apenas devem ficar prontas depois de junho de 2028, o que significa um atraso de 18 meses. Cristina Pinto Dias assegurou que o Governo está a negociar com a Comissão Europeia para não perder fundos.

Saiba Mais
Comentários
Tem 1500 caracteres disponíveis
Todos os campos são de preenchimento obrigatório.

Termos e Condições Todos os comentários são mediados, pelo que a sua publicação pode demorar algum tempo. Os comentários enviados devem cumprir os critérios de publicação estabelecidos pela direcção de Informação da Renascença: não violar os princípios fundamentais dos Direitos do Homem; não ofender o bom nome de terceiros; não conter acusações sobre a vida privada de terceiros; não conter linguagem imprópria. Os comentários que desrespeitarem estes pontos não serão publicados.

Destaques V+